![]() |
| Mungil Tapi Nyaman, Lebar 4.5 Meter Bisa Jadi Rumah Modern 2 Lantai dengan Balkon Yang Cozy |
Desainrumahpedia.com -- Tidak semua orang mampu untuk memiliki lahan yang luas untuk membuat hunian impian. Namun siapa sangka, rumah minimalis modern yang satu ini ternyata dibangun di lahan 4.5x10.5 meter saja. "Mungil Tapi Nyaman, Lebar 4.5 Meter Bisa Jadi Rumah Modern 2 Lantai dengan Balkon Yang Cozy" berikut ini bisa jadi inspirasi hunian mungil yang terjangkau.
Desain Fasad Rumah
![]() |
| Fasad Rumah |
Gaya minimalis modern membuat tampilan fasad rumah ini jadi terkesan lebih lebar meski dengan lebar 4.5 meter saja. Kombinasi warna netral hitam, abu-abu, putih, sangat matching dengan gaya industrialis pada dinding semen ekspos dan batu alam. Bagian fasad tampak lebih berdimensi dengan bentuk A-frame pada balkon. Desain pagar besi dengan bahan perforated juga menunjang tampilan modern rumah ini.
Desain Atap Rumah
![]() |
| Atap Rumah |
Atap rumah model pelana yang simpel dan minimalis tampak melindungi bangunan utama dengan baik. Ada atap dak juga, serta desain talang di kanan dan kiri yang membuat rumah ini jadi makin terlindungi.
Konsep Open Space
![]() |
| Lantai 1 |
Dengan ukuran 4.5x10.5 meter, rumah ini terasa cukup mungil. Namun penataan ruangan yang rapi dengan tambahan lantai 2 membuat rumah jadi memiliki tambahan ruang yang lebih luas lagi. Konsep open space juga sangat membantu untuk membuat kesan rumah yang terasa lebih lega.
Kamar Utama Dengan Balkon
![]() |
| Lantai 2 |
Tak hanya memiliki tampilan eksterior yang menawan, bagian interior rumah ini juga terlihat rapi meski dengan desain yang minimalis. Selain itu, kenyamanan juga menjadi aspek penting yang tampak menarik dari rumah ini. Meski kecil rumah ini memiliki jendela yang cukup untuk ventilasi agar ruangan tidak terasa sumpek. Balkon mungil yang terhubung dengan kamar utaman juga menambah kenyamanan ekstra.
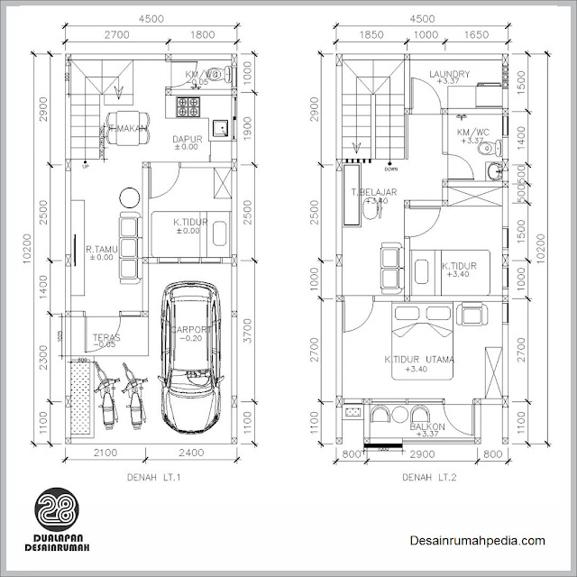
Denah Rumah
![]() |
| Denah Rumah |
Rumah ini memiliki detail fasilitas lengkap seperti berikut ini :
Lantai 1
Carport : 2.4 x 4.8 meter
Teras : 2.1 x 1 meter
Ruang Tamu : 2.1 x 3.9 meter
Ruang Makan, Dapur : 3.5 x 1.9 meter
Kamar Tidur 1 : 2.4 x 2.5 meter
Kamar Mandi : 1.8 x 1 meter
Lantai 2
Tempat Belajar dan Ruang Keluarga : 1.8 x 3.5 meter
Kamar Tidur 2 : 2.65 x 2.5 meter
Kamar Mandi : 1.65 x 1.9 meter
Ruang Cuci Jemur : 2.65 x 1.5 meter
Kamar Utama : 4.5 x 2.7 meter
Balkon : 2.9 x 1.1 meter
Itulah ide "Mungil Tapi Nyaman, Lebar 4.5 Meter Bisa Jadi Rumah Modern 2 Lantai dengan Balkon Yang Cozy" yang bisa anda jadikan referensi dalam membuat rumah. Tertarik mencobanya? Tunggu berbagai informasi dan artikel menarik lainnya dari kami ya!
Bagi Anda yang menginginkan desain rumah minimalis dari mulai sederhana hingga modern. Silahkan tinggalkan pesan dan komentar anda di facebook Inspirasi Rumah Shabby Minimalis.
Semoga artikel ini bermanfaat bagi Anda yang sedang mencari inspirasi desain dan denah rumah. Semoga anda dimudahkan rezekinya dalam membangun rumah idaman. Jangan lupa dibagikan kepada kerabat dan keluarga anda agar bermanfaat bagi lainnya.
Penulis : Rieka
Editor : Munawaroh
Sumber : Instagram.com/ @dualapan_desainrumah
Website Desainrumahpedia.com adalah website yang menyajikan berbagai denah dan desain rumah minimalis modern di Indonesia. Harapan kami Desainrumahpedia.com menjadi website nomor 1 mengenai kumpulan desain dan denah rumah terlengkap di Indonesia. Selain denah dan desain rumah, Desainrumahpedia.com juga memberikan inspirasi interior dan eksterior dekorasi rumah modern.





