Desainrumahpedia.com -- Apakah anda sedang mencari inspirasi desain dan denah rumah? Maka Desain dan Denah Rumah Minimalis di Lahan 8x18 meter, Ada 3 Kamar Tidur berikut ini dapat menjadi inspirasi yang bisa anda contoh! Tampilannya minimalis dan modern, dengan penataan ruang yang pas untuk membuat keluarga anda tinggal dengan nyaman. Penasaran dengan detailnya? Mari simak ulasan desain berikut ini!
Fasad Rumah
![]() |
| Fasad Rumah |
Tampilan fasad menjadi salah satu hal yang penting dalam membangun rumah, selain kenyamanan interiornya. Rumah ini sendiri mengusung gaya minimalis modern yang elegan namun simple, dengan fasad putih dan aksen motif kayu yang ditata diagonal membentuk tulang ikan. Memberikan kesan clean yang elegan namun tetap terkesan alami. Pintu 2 daun dengan model jendela kaca slim yang tinggi memberikan kesan rumah yang lebih lapang dan modern dengan kusen hitam.
Atap Rumah
![]() |
| Atap Rumah |
Untuk atapnya, rumah ini menggunakan model atap pelana 2 tingkat yang lebih elegan dan eye-catching. Dengan tambahan atap dak cor untuk area belakang dan juga teras depan untuk proteksi lebih maksimal. Area carport juga bisa ditambah dengan kanopi agar lebih teduh.
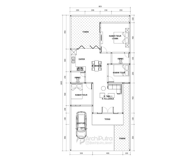
Denah Rumah
![]() |
| Denah Rumah |
Fasilitas yang dimiliki:
- Luas Tanah : 8 x 18 m (144 m2)
- Luas bangunan : 80 m2
- Carport
- Taman
- Teras
- Ruang Tamu/Keluarga
- Ruang Makan dan Dapur
- 3 Kamar Tidur
- 2 Kamar Mandi
Desain Interior
![]() |
| Desain Interior |
Untuk bagian interiornya, rumah ini juga didesain dengan konsep minimalis modern. Warna putih sebagai warna utama untuk menciptakan kesan yang clean dan lapang. Lalu warna earthy tone seperti coklat digunakan untuk menambahkan kesan homey yang hangat untuk ruangan. Penataan ruangan juga terkesan rapi dan nyaman, dengan tetap privat namun lega.
Itulah ide Desain dan Denah Rumah Minimalis di Lahan 8x18 meter, Ada 3 Kamar Tidur. Terimakasih sudah meluangkan waktu untuk membaca artikel ini. Bagi Anda yang menginginkan desain rumah minimalis dari mulai sederhana hingga modern. Silahkan tinggalkan pesan dan komentar anda di facebook Inspirasi Rumah Shabby Minimalis.
Semoga artikel ini bermanfaat bagi Anda yang sedang mencari inspirasi desain dan denah rumah. Semoga anda dimudahkan rezekinya dalam membangun rumah idaman. Jangan lupa dibagikan kepada kerabat dan keluarga anda agar bermanfaat bagi lainnya.
Penulis : Rieka
Editor : Munawaroh
Sumber : IG @archiputra_desain
Website Desainrumahpedia.com adalah website yang menyajikan berbagai denah dan desain rumah minimalis modern di Indonesia. Harapan kami Desainrumahpedia.com menjadi website nomor 1 mengenai kumpulan desain dan denah rumah terlengkap di Indonesia. Selain denah dan desain rumah, Desainrumahpedia.com juga memberikan inspirasi interior dan eksterior dekorasi rumah modern.
.jpg)



